一戸建て
R’s GARAGE
[みかん賃貸ナンバー] 511377
このお部屋は現在、みかん不動産では賃貸入居様の募集及びご契約の受付をしておりません。
同じマンション・アパート内で他のお部屋を募集している場合は、当ページ下部に「募集中の他部屋」としてリンクを掲載しています。
| 賃料/共益費 |
募集対象外 |
敷金(保証金) |
2.0ヶ月 |
礼金 |
1.0ヶ月 |
| 所在地/最寄駅 |
〒794-0044 愛媛県今治市蔵敷町1丁目16-4/JR予讃線 今治駅 徒歩12分 |
仲介手数料 |
1.0ヶ月 |
| 構造 |
木造 |
校区(小学校) |
吹揚小学校 |
校区(中学校) |
日吉中学校 |
| 築年数 |
2024年4月 (築1年11ヶ月) |
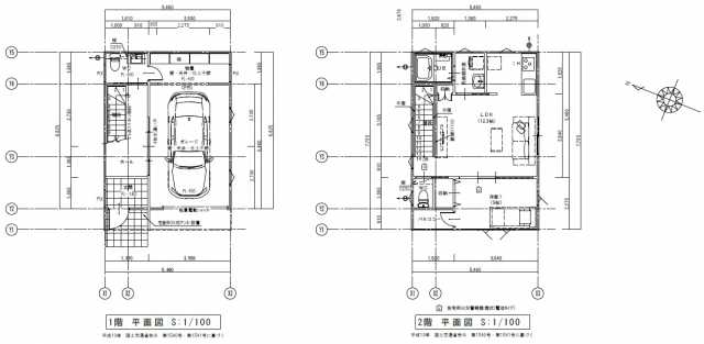
間取り |
1 LDK |
階数 |
階/2階建 |
| 現況 |
募集対象外 |
専有面積 |
79.48㎡ |
総戸数 |
6戸 |
| 入居可能時期 |
未定 |
日当たり |
南西 |
火災保険等 |
別途必要 |
| 水道料 |
実費 |
町費 |
実費 |
インターネット料金 |
実費 |
| 退去時清掃代 |
要確認 |
鍵交換費 |
要確認 |
ペット保証金 |
- |
| 駐車場 |
込み (1台込み) |
敷引金 |
|
| 特記事項 |
更新料:(要確認) |
| 備考 |
火災保険加入必須 電動ガレージシャッターリモコン付き [電気自動車(EV、PHEV)充電用電源回路有] 屋内駐車場1台分、屋外駐車場2台分 |



客室・リビング


その他部屋・スペース


キッチン


バス


トイレ


洗面所


収納


バルコニー


玄関


セキュリティ


その他


エントランス


駐車場


その他設備



| コンビニ |
セブンイレブン今治蔵敷町1丁目 |
172m |
コンビニ |
ファミリーマート今治南宝来町店 |
261m |
| コンビニ |
ローソン今治南宝来町一丁目 |
395m |
ドラッグストアー |
くすりのレディ南宝来店 |
427m |
| ドラッグストアー |
くすりのレデイ今治中央 |
513m |
保育園 |
常盤保育所 |
533m |
| 幼稚園 |
今治めぐみ幼稚園 |
615m |
保育園 |
今治中央乳児保育所 |
646m |
| スーパー |
マルナカ今治松本店 |
689m |
ドラッグストアー |
ダイレックス今治店 |
725m |
| 幼稚園 |
今治精華幼稚園 |
736m |
幼稚園 |
今治若葉幼稚園 |
822m |
| スーパー |
ライフショップ常盤店 |
824m |
保育園 |
鳥生保育所 |
837m |
| コンビニ |
セブンイレブン今治北鳥生店 |
889m |
コンビニ |
セブンイレブン今治北鳥生町4丁目 |
907m |
| コンビニ |
セブンイレブンKiosk今治駅 |
909m |
駅 |
今治駅(南) |
935m |
| 駅 |
今治駅(北) |
939m |
コンビニ |
ファミリーマート今治たちばな店 |
940m |
| 保育園 |
立花保育所 |
987m |
幼稚園 |
立花幼稚園 |
999m |
| ドラッグストアー |
コスモス黄金 |
1023m |
コンビニ |
ローソン今治駅前 |
1042m |
| コンビニ |
ローソン今治市役所前 |
1051m |
コンビニ |
セブンイレブン今治学園通り |
1057m |
| スーパー |
マルナカ今治駅前店 |
1071m |
ドラッグストアー |
くすりのレデイ南鳥生 |
1104m |
| コンビニ |
ローソン今治南鳥生 |
1119m |
保育園 |
城東保育所 |
1139m |
| スーパー |
フレッシュバリュー今治城東店 |
1163m |
コンビニ |
ローソン今治美須賀町 |
1171m |
| コンビニ |
ファミリーマート今治別宮町店 |
1176m |
コンビニ |
ファミリーマート今治常盤店 |
1209m |
| 幼稚園 |
今治幼稚園 |
1211m |
ドラッグストアー |
くすりのレデイ栄町 |
1211m |
| コンビニ |
ファミリーマート今治城前店 |
1235m |
コンビニ |
ニューヤマザキデイリーストア今治北日吉店 |
1236m |
| 100円ショップ(100均) |
meets.(ミーツ)今治ハローズ |
1237m |
コンビニ |
ファミリーマート今治郷本町店 |
1262m |
| コンビニ |
セブンイレブン今治日吉町2丁目 |
1291m |
コンビニ |
ローソン今治土橋 |
1297m |
| スーパー |
ハローズ今治 |
1309m |
コンビニ |
ローソン今治北日吉町 |
1316m |
| ドラッグストアー |
くすりのレデイ鳥生 |
1350m |
コンビニ |
セブンイレブン今治片山3丁目 |
1358m |
| 幼稚園 |
晴心幼稚園 |
1384m |
幼稚園 |
いずみ幼稚園 |
1400m |
| ドラッグストアー |
くすりのレデイ馬越 |
1430m |
100円ショップ(100均) |
ザダイソーフジグラン今治 |
1452m |
| コンビニ |
ファミリーマート今治東鳥生店 |
1466m |
ドラッグストアー |
コスモス北日吉 |
1470m |
| スーパー |
業務スーパー今治店 |
1480m |
ショッピングセンター |
フジグラン今治 |
1521m |
| スーパー |
業務用食品スーパー今治店 |
1532m |
コンビニ |
ファミリーマート今治別宮町四丁目店 |
1543m |
| ドラッグストアー |
メディコ21 |
1564m |
スーパー |
フジグラン今治 |
1602m |
| ドラッグストアー |
ドラッグストアモリ今治店 |
1606m |
スーパー |
Aコープいまばり愛彩店 |
1614m |

| プロパンガス、防犯カメラ、温水洗浄便座(シャワートイレ)、オートバス(自動湯張り)、洗髪洗面化粧台(シャンプードレッサー)、追焚、浴室乾燥機、システムキッチン、シングルレバー、ガスコンロ、コンロ2口以上、クローゼット、シューズボックス、室内洗濯機置場、照明器具、エアコン、モニター付インターホン、バルコニー、専用車庫、角部屋、暖房便座、ペット可(犬)、1階、最下階、最上階、2階以上、全室フローリング、バス・トイレ別、ペット可(猫) |
下記の項目にご記入いただき、「送信する」をクリックしてください。
※すべての項目をご記入ください。
※メール送信後に、自動返信メールが届かない場合は、メールアドレスをご確認の上、お手数ですが再度お問い合わせを行ってください。




松山店 TEL:089-905-7676 松山市西石井4-2-2 営業時間 10:00~18:00
今治店 TEL:0898-35-3122 今治市馬越町3-3-11 営業時間 10:00~18:00


ページの先頭へ