一戸建て
						R’s GARAGE A
			  [みかん賃貸ナンバー] 511377
		 
		
     
   	
					
		
	
	
	
	
		ペット可(猫可・犬可)。一軒家。
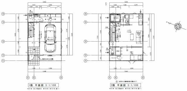
愛媛県今治市蔵敷町1丁目16-4に2024年4月(令和6年4月)新築の賃貸住宅(間取りが1LDK の一戸建て)、R’s GARAGE(アールズガレージ)のA号室です。木造(W造)2階建てになります。
防犯カメラ、温水洗浄暖房便座、洗髪洗面化粧台(シャンプードレッサー)、浴室乾燥機、追焚、室内洗濯機置き場、システムキッチン、ガスコンロ、照明器具、TVモニター付きインターホンなどの設備がある部屋となります。
		 
  
 
			 
	
	 
    
      
 
      	
        
        	
            | 賃料/共益費 | 98,000円/5,000円 | 敷金(保証金) | 2.0ヶ月 | 礼金 | 1.0ヶ月 | 
          
            | 所在地/最寄駅 | 〒794-0044 愛媛県今治市蔵敷町1丁目16-4/JR予讃線 今治駅 徒歩12分
 | 仲介手数料 | 1.0ヶ月 | 
          
            | 構造 | 木造 | 校区(小学校) | 吹揚小学校 | 校区(中学校) | 日吉中学校 | 
          
            | 築年数 | 2024年4月 (築1年7ヶ月) | 間取り | 1                    LDK | 階数 | 階/2階建 | 
          
            | 現況 | 退居予定 | 専有面積 | 79.48㎡ | 総戸数 | 6戸 | 
          
            | 入居可能時期 |  | 日当たり | 南西 | 火災保険等 | 別途必要 | 
          
            | 水道料 | 実費 | 町費 | 実費 | インターネット料金 | 実費 | 
          
            | 退去時清掃代 | 要確認 | 鍵交換費 | 要確認 | ペット保証金 | - | 
          
            | 間取詳細 | LDK12.3 洋5.0 | 敷引金 |  | 
          
            | 駐車場 | 込み (1台込み) | 
          
            | 特記事項 | 更新料:(要確認) | 
          
            | 備考 | 火災保険加入必須 電動ガレージシャッターリモコン付き
 [電気自動車(EV、PHEV)充電用電源回路有]
 屋内駐車場1台分、屋外駐車場2台分
 | 
        
        
        
       
     
	
	
    
	
		
			
								 
 - 客室・リビング  
 
 
 - その他部屋・スペース  
 
 
 - キッチン  
 
 
 - バス  
 
 
 - トイレ  
 
 
 - 洗面所  
 
 
 - 収納  
 
 
 - バルコニー  
 
 
 - 玄関  
 
 
 - セキュリティ  
 
 
 - その他  
 
 
 - エントランス  
 
 
 - 駐車場  
 
 
 - その他設備  
 
 
    
    
    
    
	
	    
	    
	    
											
				
					| コンビニ | セブンイレブン今治蔵敷町1丁目 | 172m | コンビニ | ファミリーマート今治南宝来町店 | 261m | 
															
				
					| コンビニ | ローソン今治南宝来町一丁目 | 395m | ドラッグストアー | くすりのレディ南宝来店 | 427m | 
															
				
					| ドラッグストアー | くすりのレデイ今治中央 | 513m | 保育園 | 常盤保育所 | 533m | 
															
				
					| 幼稚園 | 今治めぐみ幼稚園 | 615m | 保育園 | 今治中央乳児保育所 | 646m | 
															
				
					| スーパー | マルナカ今治松本店 | 689m | ドラッグストアー | ダイレックス今治店 | 725m | 
															
				
					| 幼稚園 | 今治精華幼稚園 | 736m | 幼稚園 | 今治若葉幼稚園 | 822m | 
															
				
					| スーパー | ライフショップ常盤店 | 824m | 保育園 | 鳥生保育所 | 837m | 
															
				
					| コンビニ | セブンイレブン今治北鳥生店 | 889m | コンビニ | セブンイレブン今治北鳥生町4丁目 | 907m | 
															
				
					| コンビニ | セブンイレブンKiosk今治駅 | 909m | 駅 | 今治駅(南) | 935m | 
															
				
					| 駅 | 今治駅(北) | 939m | コンビニ | ファミリーマート今治たちばな店 | 940m | 
															
				
					| 保育園 | 立花保育所 | 987m | 幼稚園 | 立花幼稚園 | 999m | 
															
				
					| ドラッグストアー | コスモス黄金 | 1023m | コンビニ | ローソン今治駅前 | 1042m | 
															
				
					| コンビニ | ローソン今治市役所前 | 1051m | コンビニ | セブンイレブン今治学園通り | 1057m | 
															
				
					| スーパー | マルナカ今治駅前店 | 1071m | ドラッグストアー | くすりのレデイ南鳥生 | 1104m | 
															
				
					| コンビニ | ローソン今治南鳥生 | 1119m | 保育園 | 城東保育所 | 1139m | 
															
				
					| スーパー | フレッシュバリュー今治城東店 | 1163m | コンビニ | ローソン今治美須賀町 | 1171m | 
															
				
					| コンビニ | ファミリーマート今治別宮町店 | 1176m | コンビニ | ファミリーマート今治常盤店 | 1209m | 
															
				
					| 幼稚園 | 今治幼稚園 | 1211m | ドラッグストアー | くすりのレデイ栄町 | 1211m | 
															
				
					| コンビニ | ファミリーマート今治城前店 | 1235m | コンビニ | ニューヤマザキデイリーストア今治北日吉店 | 1236m | 
															
				
					| 100円ショップ(100均) | meets.(ミーツ)今治ハローズ | 1237m | コンビニ | ファミリーマート今治郷本町店 | 1262m | 
															
				
					| コンビニ | セブンイレブン今治日吉町2丁目 | 1291m | コンビニ | ローソン今治土橋 | 1297m | 
															
				
					| スーパー | ハローズ今治 | 1309m | コンビニ | ローソン今治北日吉町 | 1316m | 
															
				
					| ドラッグストアー | くすりのレデイ鳥生 | 1350m | コンビニ | セブンイレブン今治片山3丁目 | 1358m | 
															
				
					| 幼稚園 | 晴心幼稚園 | 1384m | 幼稚園 | いずみ幼稚園 | 1400m | 
															
				
					| ドラッグストアー | くすりのレデイ馬越 | 1430m | 100円ショップ(100均) | ザダイソーフジグラン今治 | 1452m | 
															
				
					| コンビニ | ファミリーマート今治東鳥生店 | 1466m | ドラッグストアー | コスモス北日吉 | 1470m | 
															
				
					| スーパー | 業務スーパー今治店 | 1480m | ショッピングセンター | フジグラン今治 | 1521m | 
															
				
					| スーパー | 業務用食品スーパー今治店 | 1532m | コンビニ | ファミリーマート今治別宮町四丁目店 | 1543m | 
															
				
					| ドラッグストアー | メディコ21 | 1564m | スーパー | フジグラン今治 | 1602m | 
															
				
					| ドラッグストアー | ドラッグストアモリ今治店 | 1606m | スーパー | Aコープいまばり愛彩店 | 1614m | 
												
	 
	
		    
		    
		    
	          
	            | プロパンガス、防犯カメラ、温水洗浄便座(シャワートイレ)、オートバス(自動湯張り)、洗髪洗面化粧台(シャンプードレッサー)、追焚、浴室乾燥機、システムキッチン、シングルレバー、ガスコンロ、コンロ2口以上、クローゼット、シューズボックス、室内洗濯機置場、照明器具、エアコン、モニター付インターホン、バルコニー、専用車庫、角部屋、暖房便座、ペット可(犬)、1階、最下階、最上階、2階以上、全室フローリング、バス・トイレ別、ペット可(猫) | 
			
		 
	
    
		
			 
		
	
    
    
        
    
            下記の項目にご記入いただき、「送信する」をクリックしてください。
            ※すべての項目をご記入ください。
            
            
                
                
※メール送信後に、自動返信メールが届かない場合は、メールアドレスをご確認の上、お手数ですが再度お問い合わせを行ってください。
                
        
            
    
    
      
      
      
        
        
          
          松山店 TEL:089-905-7676 松山市西石井4-2-2 営業時間 10:00~18:00
          今治店 TEL:0898-35-3122 今治市馬越町3-3-11 営業時間 10:00~18:00
         
        
       
     
    
        
     
    
    
    ページの先頭へ